Mindy Moll
Refine Search

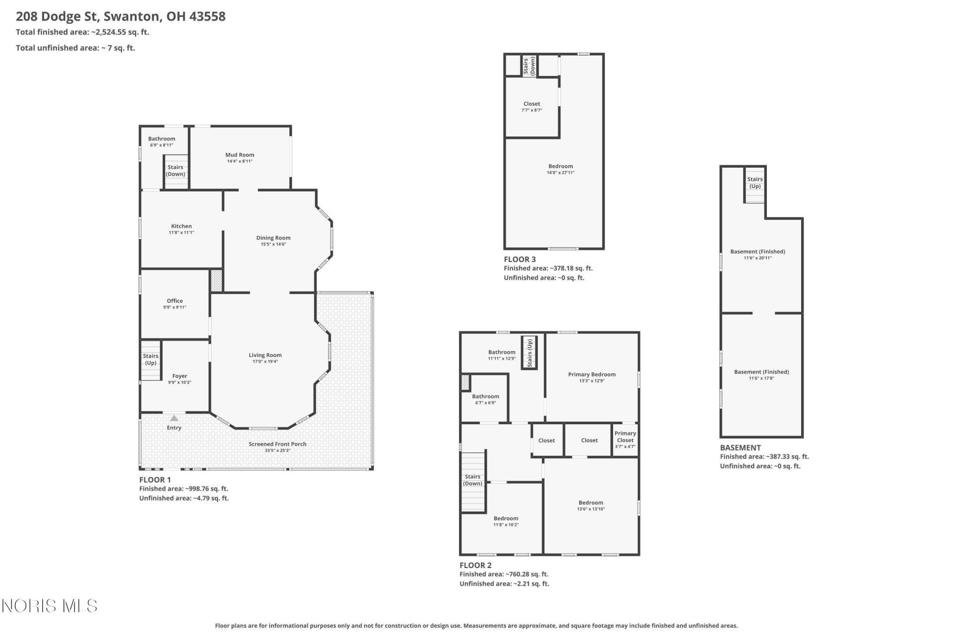
208 Dodge Street, Swanton, OH 43558

$255,900
  • 208 Dodge Street, Swanton, OH 43558 Main Photo

59 Total Photos [Click to View All]

Active
BEDS4 BATHS1 full SQUARE FEET1,706 MLS#10006470
STATUSActive PROPERTY TYPEResidential - Single Family SCHOOLSwanton

Property Description

Welcome to this spacious 2-story Swanton home with bonus 3rd level loft bedroom! High ceilings, original oak trim, transition columns between the living and dining rooms, and period door hardware give the feeling of an established, well-loved home. Updates root it in the present: remodeled kitchen with stainless steel dishwasher and microwave, newer flooring and paint, plus partially finished & waterproofed basement, newer roof & windows, and new driveway. There's extra seasonal living space in the huge wrap-around enclosed front porch and the inviting patio with adjacent fire pit. The mudroom at the back is transformed into a modern, flexible-use space: think office, playroom, or a generous back entrance. The finished attic with walk-in closet is a perfect bedroom for kids. Only 2 miles from Oak Openings Metropark. Close enough to town for groceries, restaurants and shopping, yet far enough away for more quiet living, this excellent corner lot is a great place to call home. Includes a 1-year home warranty. Set your showing appointment asap, don't miss out!

208 Dodge Street | MLS# 10006470

This single family home located at 208 Dodge Street, Swanton, OH 43558 is currently listed for sale with an asking price of $255,900. This property was built in 1900 and has 4 bedrooms and 1 full baths with 1706 sq. ft. Dodge Street is located within the Swanton school district. Search Swanton real estate on mindymoll.ikeyrealty.com today.

Property Features

Property Type: Residential - Single Family
Basement: Partial
Basement: Yes
Cooling: Central Air
Garage: 2
Heating: Forced Air
Lot Size: 0.24 Acres
Roof Type: Shingle
Stories: 2.0
Year Built: 1900

Amenities

Other

Feature Descriptions

Days on Site: 13
Exterior: Vinyl Siding
Flooring: Other
Laundry: Other
Lot: Corner Lot
Lot Dimensions: 80X130
Parcel#: 14-024676-00.000
Parking: Detached Garage
Parking Notes: Detached Garage
Pool: Above Ground
Sewer: Public Sewer
Swimming Pool: Yes
Utilities: Electricity Connected
Water: Public

Local Schools

High School: Swanton
Middle School: Swanton
Elementary School: Swanton
School District: Swanton

Listed By / Shown By

Listed By

Agency Name: RE/MAX Masters
Agency Phone: 419-874-1188

Shown By

Agent Name: Mindy Moll
Agent Phone:
Agency Title: Key Realty

IDX logo

Estimate Your Payment

Estimated Payment

$ 1,506.07 per month $1,431.43 Principal & Interest $0.00 Property Tax (data not provided by mls) $74.64 Homeowner's Insurance

Change Payment Information

%
years/fixed
yearly
yearly (est.)
(Payments are an estimate and may vary by lender)

Login to My Homefinder

Pixel